商品プランについて
すべて自由設計です
PLAN
商品プラン
基本的に自由なのですが、、、より分かりやすく見ていただけるようプランをご用意いたしました!
自分たちが建てるならという目線でご用意しています!
間取りはもちろん自由設計で、設備などもお好きなものを選んで頂くことができます。
-
平屋・2階 建てプラン


-
自然素材 プラン


平屋・2階建てプラン


自由度や住み心地を考えた
ふうりんのお家コダワリのプランです!
仕様
自分たちが住みたいと思える仕様で厳選しました!
-

長期優良住宅
-

省令準耐火構造
-

耐震等級3
+耐震ダンパー -

長期保証20年
-

設備保証10年
-

吹付断熱仕様
高気密高断熱 -

フルオーダー
などなど…
自分たちが住むなら買うならという目線の仕様を選びました!
上記の仕様だけでなく、水廻りの設備や床材などにもしっかりこだわった仕様になっていますので、ぜひふうりんのお家へ聞きに来てみてくださいね!
もちろん小さな工務店ならではの自由さもありますので、理想のお家にどんどん近づけていきましょう!
ふうりんのお家のプランが選ばれる理由
デザイン・間取り・設備も自由自在。ふうりんのお家が選ばれる理由のひとつです。
家族にピッタリの世界に一つだけのお家をつくります。
-
01
安心の建築知識
打ち合わせ時は、建築現場を知り尽くしている担当者が対応するため、お客様からいただくご質問等に、その場で速やかにご回答いたします。メリットだけでなくデメリットもしっかりとお伝えする。それがふうりんのお家のモットーです。

-
02
豊富なご提案
豊富な経験を持つスタッフが、お客様との対話を通じて、ライフスタイルに合ったさまざまな提案を行います。幅広いプランの中から理想の住まいを形にしていきましょう。

-
03
じっくり
お打ち合わせができる信頼できる専属の大工が施工するため、年間の着工棟数が限られます。そのため、細部にわたるプランやデザインまでじっくりお打ち合わせをすることができます。お打ち合わせ回数はどこにも負けません。

-
04
自由な間取り
完全自由設計により、外観のデザイン、居室の広さや形状、家具を入れた際の状況など、お客様の希望に応じたオーダーメイドの間取りを実現します。

-
05
予算に合わせた
住まいづくり事前に算出した総予算を基に、ご要望を可能な限り反映したプランをご提案いたします。お客様の予算に合わせた最適な住まいづくりをサポートします。借りられる金額ではなく、返せる金額でプランニングいたします。


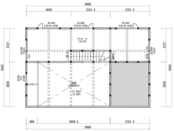
2階建てプラン(下屋あり)
※下屋とは、2階建ての平屋部分のことです。1階が大きいタイプ。
-
[1階平面図 ]

-
[2階平面図 ]


間取りのコダワリ
余分な廊下を減らし、水廻り動線を真っ直ぐとることで、暮らしやすい動線にしてみました!収納もたっぷりとり家族にしか見えない部分に設けたので急な来客時も安心です。ランドリールームが広いのが推しポイント!
上のプランの場合
建物だけの価格やら…諸経費やら…分かりにくいので、分かりやすく!
もろもろ合わせた
こみこみ価格
2,265万円(税込)
施工面積 1階17.5坪+2階14坪=31.5坪
近年の物価の上昇により常に価格は変動致します。詳しくは、ふうりんのお家までお問い合わせください。
建物にかかる費用は
土地やお施主様によってさまざま…
総額での資金計画をオススメしております!
ローンを組まれる場合には
月々のお支払い計算も!
お気軽にご相談ください!
平屋建てプラン(下屋あり)
-
[1階平面図 ]


間取りのコダワリ
坪数をできるだけおさえたギュッとしたプランにしてみました!坪数を減らすことで、憧れの平屋が手の届く価格に…!小さいながらも水廻り部分もしっかり広さを確保&収納もガッツリとっています!
上のプランの場合
建物だけの価格やら…諸経費やら…分かりにくいので、分かりやすく!
もろもろ合わせた
こみこみ価格
2,250万円(税込)
施工面積 1階25.5坪
平屋プランは長期優良住宅仕様ではございません。近年の物価の上昇により常に価格は変動致します。詳しくは、ふうりんのお家までお問い合わせください。
建物にかかる費用は
土地やお施主様によってさまざま…
総額での資金計画をオススメしております!
ローンを組まれる場合には
月々のお支払い計算も!
お気軽にご相談ください!
よければご参考にお施主様の想いが
たくさんつまった事例をご覧ください
自然素材プラン


健康・省エネ・耐久・無垢材の魅力などに
コダワったプランです!
コダワリポイント
構造材や耐久性にはずっとこだわってきましたが、さらにグレードアップした自然素材にとことんこだわったプランです。本物の素材と技術で無垢材の良さを詰め込みました。
-
01
無垢材の魅力
無垢材の魅力と言えば、質感や経年劣化。無垢材にしか出すことのできない温かみのある木の質感や年月を重ねることに出る味わいある魅力的な姿を楽しんでいただけるプランです。
-
02
木造建築の耐久力
日本の歴史的建造物の多くは木材でできていて建ち続けているように、木材はきちんとした乾燥方法や施工をすると、強く長持ちします。自然の物を使いできるだけ長く使い続けるという考えを大切に。
-
03
健康に気を遣った住まい
30㎜厚の無垢材をご用意。冬でもあったかスリッパいらず、夏もカラッと気持ちいい床材です。珪藻土入りのクロスも使用し、調湿効果も抜群で1年を通して快適です。
-
04
自由な間取り
ふうりんのお家はどのプランも自由設計です。ご予算やご希望に合わせて無垢材を活かしたオーダーメイドの住まいをご提案いたします。
自然素材プラン
-
[1階平面図 ]

-
[2階平面図 ]

上のプランの場合
建物だけの価格やら…諸経費やら…分かりにくいので、分かりやすく!
もろもろ合わせた
こみこみ価格
価格調整中…
施工面積 1階19.25坪+2階8.25坪=27.5坪
日常と住まいのプランとは仕様が異なりますのでご注意ください。近年の物価の上昇により常に価格は変動致します。詳しくは、ふうりんのお家までお問い合わせください。
建物にかかる費用は
土地やお施主様によってさまざま…
総額での資金計画をオススメしております!
ローンを組まれる場合には
月々のお支払い計算も!
お気軽にご相談ください!


